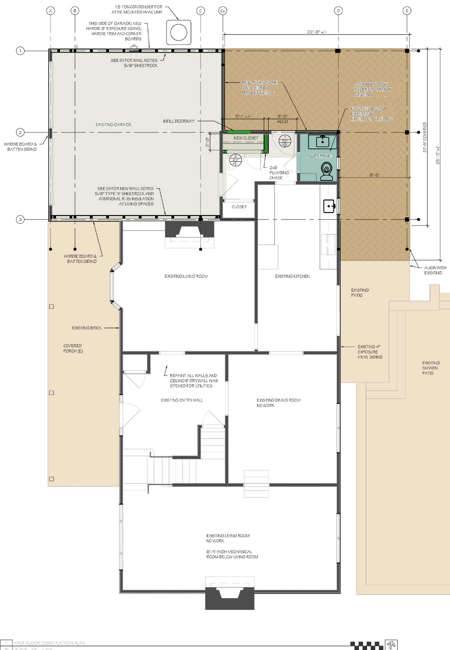
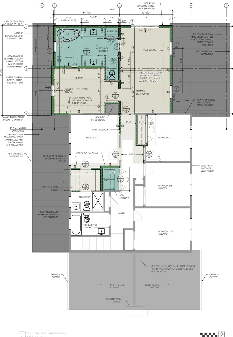
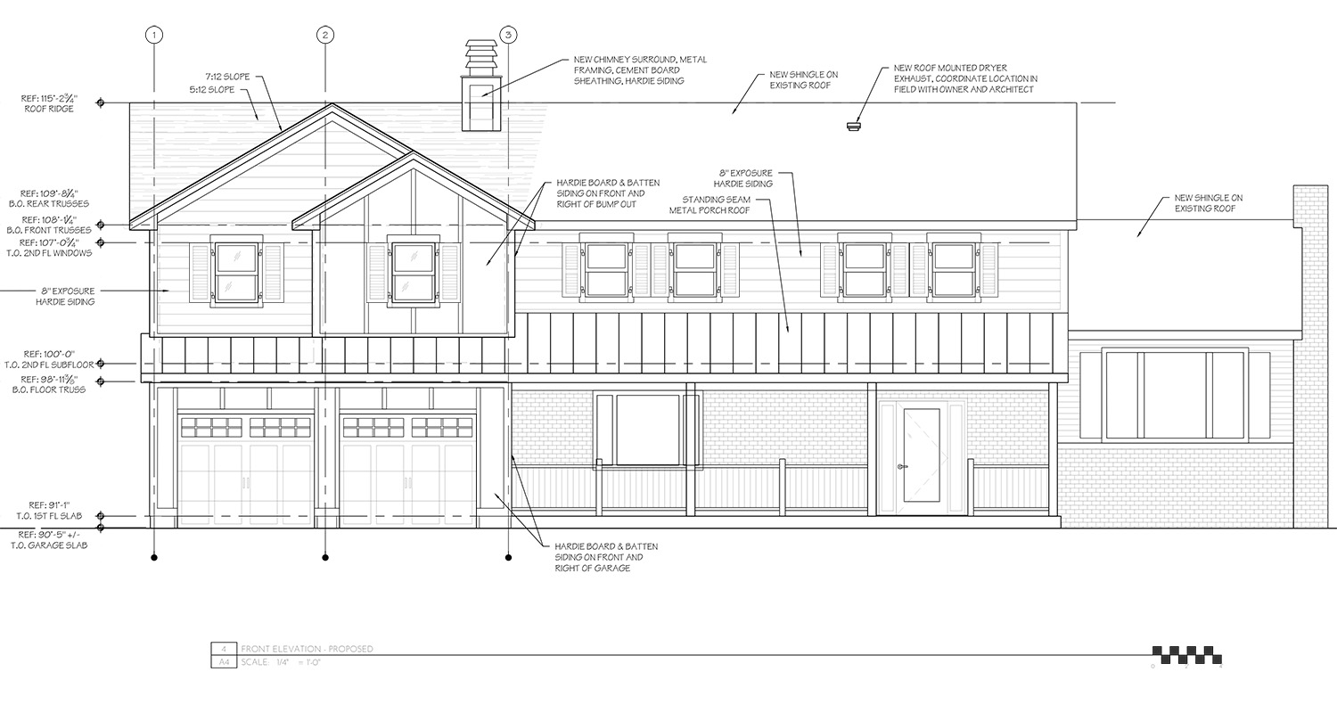
Project Spotlight:
Private Home

West Windsor, New Jersey


Photo of Private Home Photo of Private Home Photo of Private Home Photo of Private Home